Détails

40 logements locatifs sociaux

Montbéliard

Acteurs

Maîtrise d'ouvrageNEOLIA

MandataireIXO architecture

PartenairesGETTEC, BET structure
IMAÉE, BET fluides
ETIBAT, économiste
C2Bi, pilote

Programme

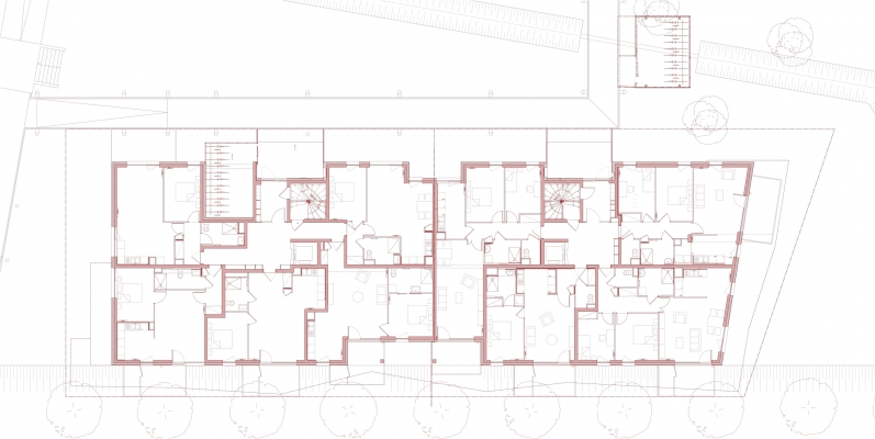
40 logements locatifs sociaux en deux cages, sur pilotis en zone inondable
11 T2, 25 T3 et 4 T4
Stationnement dans le silo du quartier

Neuf

PrestationsCommuns éclairés naturellement
Séjours majoritairement sud ou ouest
Balcons filants rythmés de celliers extérieurs
Structure en béton armé
Isolation extérieure
Métal déployé en garde-corps et bardage de façade
RT2012 -10%

Informations

MissionsConcours
BASE + EXE + OPC + ACC

DatesSeptembre 2012 - Juillet 2018

Surfaces et montant travaux2 710m2 SHA
3 050 000 € HT

Crédit photoIXO architecture

Lieu

Voir sur Google maps

Rue Charles Goguel,
25200 Montbéliard

Latitude : 47°30'26.40"N
Longitude : 6°48'07.33"E

Retour