Détails

Centre de gestion 67 pour les collectivités locales

Illkirch-Graffenstaden

Acteurs

Maîtrise d'ouvrageCDG 67

Mandataire du maître d'ouvrageSERS

MandataireIXO architecture

PartenairesOTE Ingénierie, BET pluridisciplinaire
OTELIO, BET thermiques / environnement
IXO architecture, économiste
ESP, acousticien

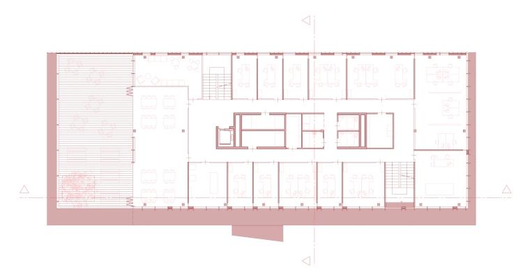
Programme

Salles de réunion et de formations
Bureaux individuels, partagés ou paysagers modulables
Cafétéria

Neuf

PrestationsStructure béton, étanchéité sur toiture terrasse
Bardage métallique ajouré brise-soleil
Murs rideaux en aluminium avec BSO
Cloisons démontablessous faux plafonds acoustiques en plâtre perforé

Informations

MissionsConcours
BASE + EXE + SSI + CEM

DatesFévrier 2019

Surfaces et montant travaux1641 m² SU
3 900 000 € HT

Crédit photoILULISSA

Lieu

Voir sur Google maps

Boulevard Sebastien Brant,
67 400 Illkirch-Graffenstaden

Lattitude: 48°31'10.3"N
Longitude: 7°44'10.4"E

Retour