Détails

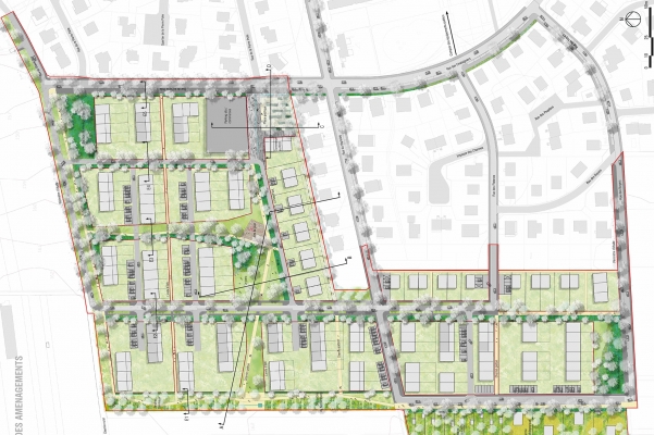
Écoquartier “Les portes du Kochersberg”

Vendenheim

Acteurs

Maîtrise d'ouvrageCOMMUNE DE VENDENHEIM / SERS

Maîtrise d'ouvrage assistantOASIIS

MandataireIXO architecture

PartenairesLOLLIER ingénierie, VRD, pilote
MUTABILIS, paysagiste
IXO architecture, urbaniste

Programme

350 logements à terme
Répartition des typologies (individuel groupé / intermédiaires / collectif)
50% de logements sociaux

Neuf

PrestationsPlace publique inter-quartier
Voirie partagée
Aire de jeux paysagère
Noues végétales
Bassins d'infiltration
Vergers et jardins familiaux
Ferme pédagogique

Informations

MissionsBASE + OPC
architecte conseil de l'écoquartier

Dates2009 - 2016 (tranche 1)
2009 - 2017 (tranche 2)

Surfaces et montant travaux8,83 ha
4 150 000€ HT

Crédit photoIXO architecture

Lieu

Voir sur Google maps

Rue du vignoble,
67550 Vendenheim

Latitude : 48°40'2.86"N
Longitude : 7°42'9.76"E

Retour