Détails

38 logements collectifs locatifs

Strasbourg

Acteurs

Maîtrise d'ouvrageCUS HABITAT

MandataireIXO architecture

PartenairesICAT ingénierie, BET structure
THERMELEC, BET fluides
EPC, économiste

Programme

Opération de renouvellement urbain
Remplacement en deux phases de trois bâtiments vétustes par 5 nouveaux immeubles de logements locatifs sociaux

Neuf

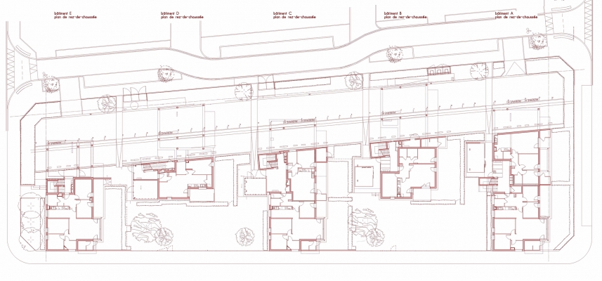
Prestations5 bâtiments R+2+attique desservis par coursives
Stationnement aérien
Résidentialisation avec cours communes et jardin privatifs
Un hall fermé par immeuble, locaux communs extérieurs
Logements tous traversants, double à triple orientation
Séjours sud-est et sud-ouest, duplex, terrasses et vastes balcons
Façades en briques alvéolaires isolantes "monomur"
Chauffage collectif urbain

Informations

MissionsConcours
BASE + EXE

Dates2006 - 2009 et 2012

Surfaces, montant travaux2 985m² SHA
3 337 000 € HT

Crédit photoIXO architecture

Lieu

Voir sur Google maps

Rue du Cantal,
67000 Strasbourg

Latitude : 48°32'38.85"N
Longitude : 7°46'27.55"E

Retour