Détails

29 logements locatifs sociaux BBC

Mulhouse

A la reconquête d’une des nombreuses friches industrielles mulhousienne, le quartier « Bel Air » met en œuvre ses principes de développement durable sur l’emprise d’une ancienne filature : couture avec l’urbanisation environnante, priorité aux modes de déplacement doux, mixité programmatique et sociale, urbanisme ouvert pour favoriser la qualité des cœurs d’îlot et gestion des eaux pluviales publiques par des noues paysagères qualifiant l’espace.

A l’une des deux entrées principales du site, le terrain bénéficie d’une orientation favorable.
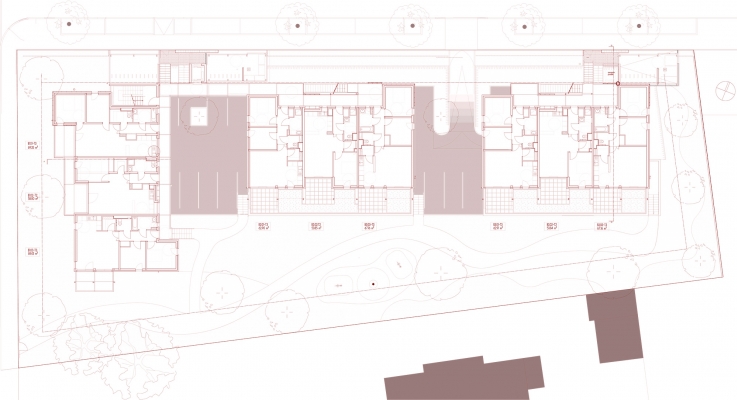
Implantés sur rue à l’arrière d’une bande de locaux communs qui rythment les accès individualisés, les trois immeubles s’espacent pour offrir des percées visuelles dont une dans l’axe de l’ancienne villa du directeur, libèrent au Sud un jardin en cœur d’îlot agrémenté de grands arbres et abritent chacun 9 à 11 logements qui bénéficient ainsi d’une triple orientation à partir du T3.

La surélévation du RdC, sous lequel se glisse le stationnement semi ouvert, et la distribution par coursives et escaliers extérieurs, assure la transition avec l’espace public sans locaux collectifs fermés nécessitant un entretien. Les entrées, en creux dans la façade, également protégées par les panneaux de bardage bois ajourés, sont limitées à trois par palier.

Tous traversants, les logements ouvrent au sud et à l’ouest leur séjour largement vitré, prolongé de balcons filants. Constitués comme les coursives de dalles bétons préfabriquées fixées sur une ossature métallique désolidarisées de l’enveloppe thermique extérieure, ceux-ci suppriment les ponts thermiques, facilitent la réduction des seuils pour l’accessibilité PMR, protègent du rayonnement solaire direct d’été et animent les façades par le rythme de leur élargissements.

L’éclairage naturel de la plupart des salles de bain, l’absence d’ouverture de toute pièce de vie sur les coursives et la réduction des dégagements au profit des espaces à vivre complètent l’attention portée au confort des logements, couronnés par les séjours en double hauteur des duplex des niveaux supérieurs.

Enveloppant une structure de planchers et refends en béton garants du confort acoustique, les façades en briques creuses plâtrées côté intérieur augmentent l’inertie thermique et régulent l’hygrométrie interne en complément de la ventilation naturelle facilitée par l’organisation traversante.

Les locaux cycles largement dimensionnés s’ouvrent de part et d’autre des portails piétons, au plus près des usages, tandis que l’accès direct sur la rue des locaux poubelles évite l’aménagement d’aires de présentation souvent disgracieuses et le passage de personnel de service.
Le bardage en bois ajouré sur ossature acier couverte d’une dalle béton participe à l’expression du projet basée sur le contraste et la complémentarité de ces trois matériaux.

Conception bioclimatique et rigueur d’organisation concourent à proposer un cadre de vie renouvelé dans lequel les habitants sont au cœur des préoccupations.

Acteurs

Maîtrise d'ouvrageNEOLIA

MandataireIXO architecture

PartenairesGETTEC, BET structure
GROUPES FLUIDES, BET fluides, VRD
GEST'ENERGIE, BET thermiques / environnement
ETIBAT, économiste
VILLE et PAYSAGES, paysagiste
C2Bi, pilote

Programme

29 logements locatifs sociaux :
- 7 T2, 15 T3 et 7 T4
- 1 place de stationnement par logement

Neuf

Prestations3 bâtiments R+2+attique desservis par coursives sur stationnement semi- enterré
Jardin collectif
Locaux communs extérieurs
Desserte par coursives, logements tous traversants
Double à triple orientation
Séjours sud et ouest, duplex
Terrasses et vastes balcons
Façades en briques alvéolaires
Isolées par l'extérieur
Coursives et balcons désolidarisés en ossature métallique et dalles béton préfabriquées
Menuiseries bois
Chauffage collectif gaz
Eau chaude sanitaire solaire
BBC 2005

Informations

MissionsConcours
BASE + EXE + OPC

DatesOctobre 2007 - juillet 2011

Surfaces et montant travaux2 009m² SHA
2 715 000€ HT

Crédit photoC. Bourgeois

Lieu

Voir sur Google maps

Rue Albert Macker,
68200 Mulhouse

Latitude : 47°46'28.59"N
Longitude : 7°19'14.75"E

Retour